For more information please feel free to contact us and one of our advisors will be available to help.
Office Opening Hours: 9:00AM – 17:00PM Monday – Friday
Please leave us an email if out of hours.
Thanet Earth is the largest greenhouse complex in the UK. Producing an estimated 400 million tomatoes, 33 million cucumbers and 20 million peppers each year.
Back in 2024, we began conversations with Thanet Earth about modifying their access platforms which are used in their protected crops to overlook the growing conditions of their produce.
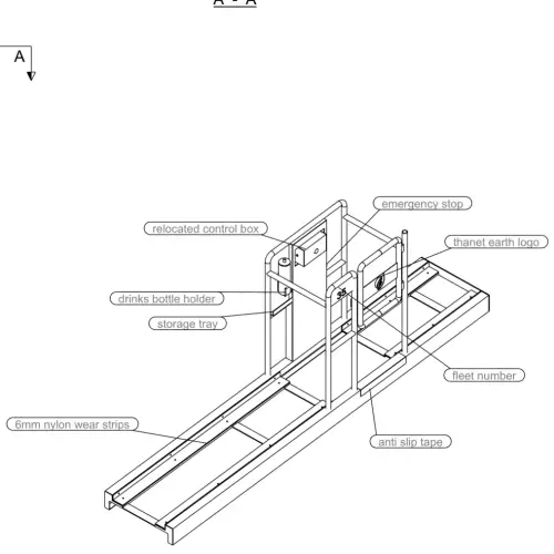
Following these discussions, our project scope included the design, fabrication, supply and delivery of 43 aluminium frame access platforms, modified to suit their existing access equipment. This project would include the work of both our Smart Construction and Fabrication teams.
Below is an overview of the main modifications:
- Relocation of the main control panel to ensure easier use and safety.
- Adding a laser cut Thanet Earth logo to match branding
- Relocation of foot pedal controls for better access
- Incorporating a water bottle holder and basket for user storage
After completing the necessary risk assessments and site audit reports, our Fabrication team, managed by Arron Morgan, began the drawings for the new modified design:
Following the CAD drawings being confirmed, our fabrication team began work on the existing 43 platforms at our very own fabrication workshop based in Sittingbourne, next to our Head Office.
Once completed (and after adding some little Smart CI Group touches!) our vans were loaded up and ready to transport the platforms back to Thanet Earth ready for use.
From extending platform bases and reconfiguring man cages, to integrating bespoke features like chequer plate blanks, laser-cut logos, water bottle holders, and relocated control systems – every detail was tailored to exact client specs.
At Smart CI Group, we’re proud of this successful completion of a major bespoke project for Thanet Earth, and to of had both our Fabrication and Construction team work together to design, build and deliver all 43 platforms in a way which is now smart, safe and engineered to perform.
We now continue to have Thanet Earth as a valued client, and help shape the future of sustainable agriculture one project at a time.
Got a bespoke metalwork job in mind? Contact us
For more information please feel free to contact us and one of our advisors will be available to help.
Office Opening Hours: 9:00AM – 17:00PM Monday – Friday
Please leave us an email if out of hours.
How can we help?